Casa indipendente in vendita

Sacile, Via Toscana
€ 255.000
Prezzo aggiornato
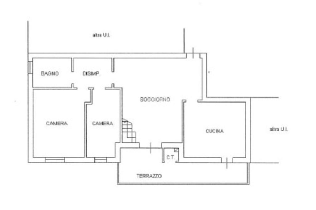
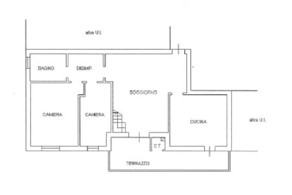
4 locali 4 locali
145 Mq 145 Mq
1 bagno 1 bagno

Casa indipendente in vendita

Sacile, Via Toscana

Descrizione annuncio

Casa Indipendente con Carattere e Personalità a Sacile (PN)

Via Toscana – Sacile (Pordenone)

Soluzione perfetta per chi sogna una casa unica con carattere, pronta da vivere o da personalizzare con gusto personale!

Perché questo immobile è davvero speciale:

140 mq calpestabili ben distribuiti — non un semplice rustico, ma una casa indipendente con spazi funzionali e potenziale da esprimere.
4 locali comodi e accoglienti ideali come zona giorno, camere e area relax o smart-working.
Ristrutturata con cura nel 2013, mantiene il fascino originale delle case indipendenti e si integra con comfort moderni.
Contesto tranquillo e ben collegato: vivi la quiete di Sacile pur restando vicino a tutti i servizi principali.
Perfetta per personalizzarla a tuo gusto: piccole migliorie possono trasformarla in una casa dalla forte personalità, elegante e funzionale.

Una casa che racconta una storia:
Edificata negli anni 70, ristrutturata con gusto e mantenuta con cura, offre un ottimo equilibrio tra autenticità architettonica e comfort moderno — il luogo ideale per chi ama vivere una casa con carattere.

Mostra tutto

Nelle vicinanze

Trasporto pubblico Trasporto pubblico
stazione di Sacile
stazione di Sacile
660 m
Sacile - San Liberale
Sacile - San Liberale
1,5 Km
P3719 Sacile Via Ponte Lacchin (Eurospar)
P3719 Sacile Via Ponte Lacchin (Eurospar)
600 m
Trasporto pubblico
620 m
Scuole Scuole
Scuola Primaria "XXXI ottobre"
260 m
Scuola elementare Grazia Deledda
990 m
IPSIA "Piero della Valentina"
1,2 Km
Scuola Primaria "Vittorino da Feltre"
1,2 Km
ISIS Pujati
1,2 Km
Farmacia Farmacia
Alla Stazione
500 m
All'Esculapio
900 m
Farmacia Bechi
930 m
Farmacia Comunale San Gregorio
1,1 Km
Farmacia
1,4 Km
Ospedali Ospedali
Ospedale "San Gregorio"
1,2 Km
Supermercati Supermercati
Supermercato Ceolin
250 m
Eurospar Punto vendita diretto
590 m
CAD BELLEZZA E IGIENE
690 m
A&O
1,3 Km
COOP
1,7 Km
Negozi Negozi
Rivaletto Alberto
720 m
Pasticceria Piemontese
780 m
Maglificio Mazzonetto S.P.A.
800 m
Somma Sas
810 m
Da Re S.r.l.
830 m
Bar Bar
Bar / Gelateria "Capriccio"
220 m
Le Bistro
260 m
Bar osteria settantasette
570 m
Bar
660 m
Pasticceria Brieda
680 m
Ristoranti Ristoranti
Pizzeria Da S'Ciaus
220 m
Ristorante Le Contrade
720 m
Pizzeria Rosalba
730 m
Ristorante Cellini
760 m
Giardino della Serenissima
780 m
Mostra tutto

Caratteristiche

Rif.:
61166925
Piano:
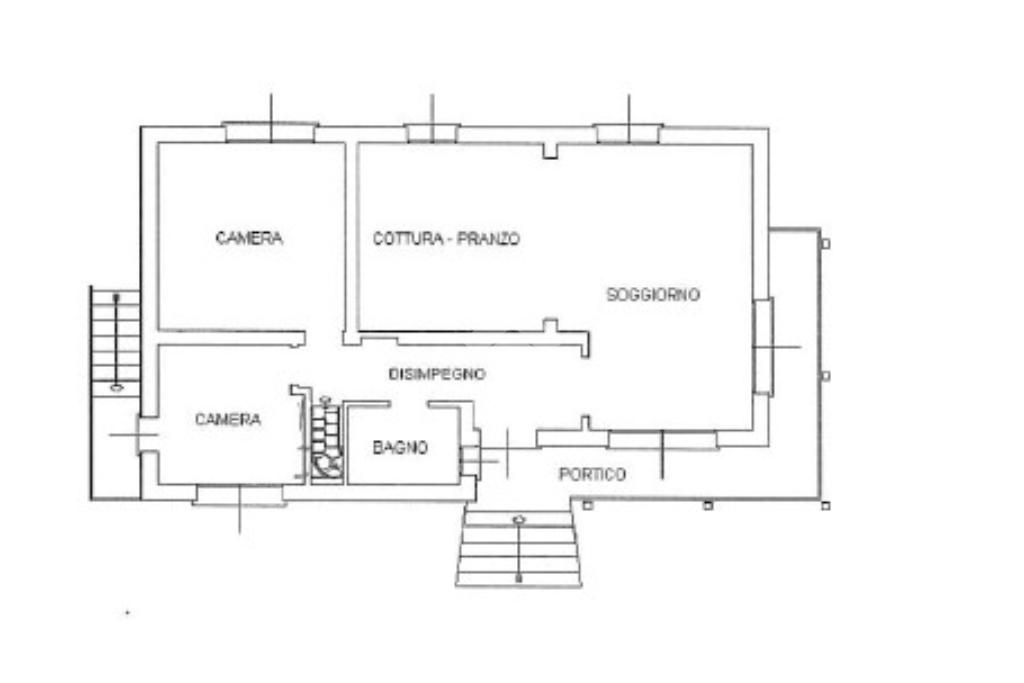
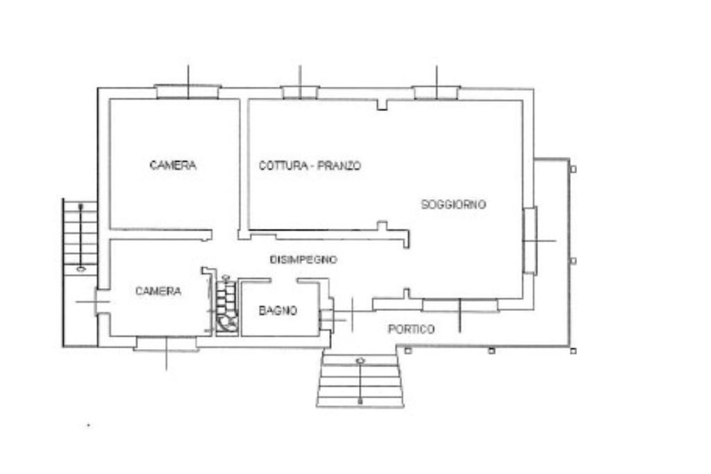
2 di 2 (Piano su più livelli)
Box:
1
Posti auto:
1
Balconi:
1
Terrazzi:
1
Mostra tutto
Prezzo Prezzo
€ 255.000
Rata mutuo Rata mutuo
€ 1.210 / mese
Proponi il tuo prezzoProponi il tuo prezzo

Classe Energetica

F
F
F
F
F
F
F
F
F
EP invernale del fabbricato:
EP estiva del fabbricato:
Anno di costruzione:
1980
Riscaldamento:
Autonomo
Tipo impianto:
A radiatori
Tipo alimentazione:
Metano

Prezzo ridotto di €1 (4%%)

Ti interessa visionare l'immobile?

Fissa un appuntamento  Fissa un appuntamento

Richiedi informazioni

Clicca su Leggi per aprire l'informativa
* Questi campi sono obbligatori

Calcola il tuo mutuo

Semplice e senza impegno
Anticipo

( % )
Mutuo

( % )

pochi semplici passi

inserisci i tuoi dati
Questionario completato
Grazie per aver richiesto un appuntamento senza impegno con un nostro Consulente del Credito e Assicurativo.

Hai inserito correttamente tutti i dati necessari e a breve riceverai una e-mail con un link da convalidare per inviare i tuoi dati.
Affiliato
Studio Sacile Srl
Via G.Garibaldi, 14 33077 Sacile (PN)

Il nostro staff


  • Edoardo Maria Cunzo
    Responsabile

  • Matteo Fedrigo
    Collaboratore

  • Alice Gava
    Affiliata

  • Carlotta Merluzzi
    Responsabile

  • Anna Pozzati
    Affiliata
Via G.Garibaldi, 14 33077 Sacile (PN)
Zona: Sacile
Mostra su mappa
Orari: Lunedi - Venerdi : 9:00 - 12:30; 14:30 - 19:00 Sabato: 9:00 - 12:30
Affiliato
Studio Sacile Srl
Via G.Garibaldi, 14 33077 Sacile (PN)

2026 Tecnocasa Franchising S.p.A. - P. IVA 08365160152 - Via Monte Bianco 60/A 20089 Rozzano (MI). Ogni agenzia ha un proprio titolare ed è autonoma. Privacy policy | Policy utilizzo | Cookie policy